
WSSP-371螺纹抽芯式万向一体化双金属温度计简介
双金属温带热电偶、热电阻一体化温度计和双金属带热电偶、热电阻一体化温度变送器是现场就地显示和远传电信号的温度传感器,它可以就地指示温度,也可以同时把信号远传至控制仪表,以实现远程调节和控制,上海自动化仪表三厂生产的WSSP-371螺纹抽芯式万向一体化双金属温度计,作为新一代的温度传感器,它可以直接测量工业生产过程中-60℃~500℃范围内的液体、气体和蒸汽等介质的温度,被广泛用于冶金、石化、电力、轻纺、食品国防等工业部门。
WSSP-371螺纹抽芯式万向一体化双金属温度计主要技术参数
◆测量范围:-60~500℃
◆精度等级: 1.5级(可以做成1.0级)
◆与热电阻配套:分度号P100,精度A级或B级(接线盒内可加配温度变送器)
◆与热电偶配套:分度号E或分度号K,精度I级或II级(接线盒内可加配温度变送器)
◆标度盘公称直径:60mm
◆插入深度:L=60~1800mm
◆套管直径:d=Φ10-Φ16或根据需要
◆套管材质:不锈钢304、321、316等
◆安装方式:螺纹式
◆响应时间:≤50S
◆使用环境温度:室内-25~55℃;室外-25~80℃
◆相对湿度:5~95%
◆防护等级:IP65
◆执行标准 JB/T8803-1998 GB3836-83
一体化双金属温度计工作原理
双金属温度计是利用两种不同金属的膨胀系数不同的原理而工作的。将双金属片绕制成螺旋管状的一端被固定,另一自由端与指针连接,随着温度的变化而转动,并带动指针在表盘上显示对应的温度。
一体化双金属温度计使用选型

选型举例:
WSSP-301 表示表盘直径Φ60mm的可动外螺纹连接,轴向型一体化双金属温度计
WSSP-311表示表盘直径Φ60mm的可动外螺纹连接,径向型一体化双金属温度计
WSSP-361表示表盘直径Φ60mm的可动外螺纹连接,径向抽芯式一体化双金属温度计
WSSP-371表示表盘直径Φ60mm的可动外螺纹连接,万向抽芯式一体化双金属温度计
WSSP-381示表盘直径Φ60mm的可动外螺纹连接,万向型一体化双金属温度计
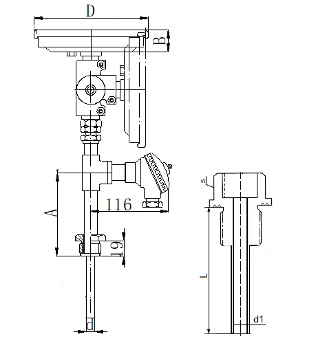
一体化双金属温度计安装图片
◆WSSP-371螺纹抽芯式万向一体化双金属温度计
D=70mm A=100mm B=22mm
d=6-10mm d1=10-16mm L=60-1800mm
内外螺纹M27*2或根据需要



客服1