
WSSX-461可动外螺纹径向抽芯式电接点双金属温度计简介
双金属温度计是用于测量中、低温的现场检测仪表,它具有易读数,安全可靠,使用寿命长等优点,上海自动化仪表三厂生产的WSSX-461可动外螺纹径向抽芯式电接点双金属温度计带有机械电接点,当被测介质温度变化时,转向机构带动指针及指针上的触点一起转动,在刻度盘上指示对应温度值的变化,当其与定触点上下限、下下限或上上限接触或断开时,电路系统中的继电器及接触器随之动作,已达到控制和报警的目的,它可以直接测量工业生产过程中-60℃~600℃范围内的液体、气体和蒸汽等介质的温度。
WSSX-461可动外螺纹径向抽芯式电接点双金属温度计主要技术参数
◆测量范围:-60~600℃
◆精度等级: 1.5级(可以做成1.0级)
◆触点额定功率:10VA
◆接点最高工作电压:AC220V
◆接点最高工作电流:1A(无感负载)
◆工作电压:15V~48V
◆标度盘公称直径:100mm
◆插入深度:L=75~1800mm
◆保护管直径:d=φ6、φ10
◆保护管材质:不锈钢304,321,316或其它
◆安装螺纹:可动外螺纹M27*2其它请注明
◆响应时间:≤70S
◆使用环境温度:室内-25~55℃;室外-40~85℃
◆相对湿度:5~100%
◆防护等级:IP65
◆执行标准 JB/T8803-1998 GB3836-83
工作原理
双金属温度计是利用两种不同金属的膨胀系数不同的原理而工作的。将双金属片绕制成螺旋管状的一端被固定,另一自由端与指针连接,随着温度的变化而转动,并带动指针在表盘上显示对应的温度。
使用选型

选型举例:
WSSX-401 表示表盘直径Φ100mm的可动外螺纹连接,电接点轴向型双金属温度计
WSSX-451 表示表盘直径Φ100mm的可动外螺纹连接,电接点轴向抽芯式双金属温度计
WSSX-411B 表示表盘直径Φ100mm的可动外螺纹连接,防爆电接点径向型双金属温度计
WSSX-481N 表示表盘直径Φ100mm的可动外螺纹连接,耐震电接点万向型双金属温度计
另外还需要提供插深和使用温度
安装图片
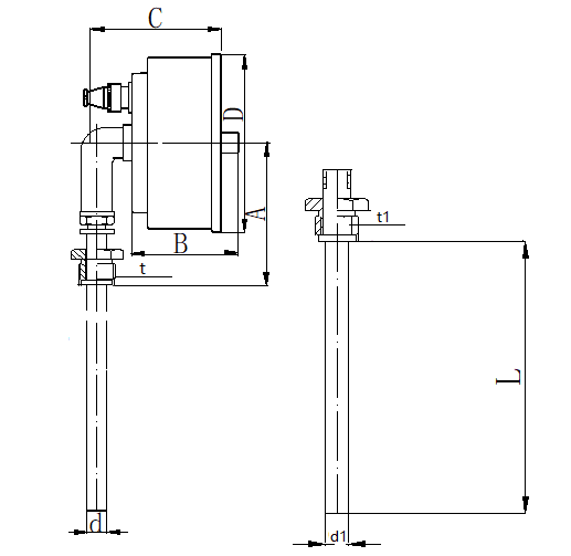
◆WSSX-461可动外螺纹电接点径向抽芯式双金属温度计
D=111 A=88 B=60 C=93
t=M10*1 t1=M27*2
d=6mm d1=10mm L=75-1800mm

◆电接点双金属温度计触点设定方式(上下限,上上限,下下限)



客服1